Tipo
Precio
Provincia
Población
Distrito
  • Necesitas seleccionar una población para poder filtrar por distrito

Barrio
  • Necesitas seleccionar un distrito para poder filtrar por barrio

Estado
Extras

Vivienda de lujo en planta baja en Ruzafa

Eixample, Valencia - Valencia

NC5385

665.000€

Icono de una capa

1

Icono de una ducha

2

Icono que representa los metros
					cuadrados

116

Icono que representa los metros
					cuadrados exteriores

20

Características

  •   Buen estado/Reformado

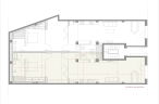
En el corazón de Ruzafa, en un edificio señorial de 1910 totalmente rehabilitado, presentamos este bajo reformado de manera integral en 2021. La vivienda cuenta con 112 metros construidos según catastro y está concebido como espacio contemporáneo con carácter.

La vivienda destaca por su altura, vigas originales vistas y una distribución amplia y limpia, integrada por una gran zona de día con cocina integrada, un dormitorio independiente, un baño completo y una terraza interior que aporta luz natural y profundidad al espacio.

La reforma se ejecutó íntegramente en 2021: instalaciones renovadas, climatización por conductos, carpinterías de altas prestaciones y cocina completamente equipada. El resultado es un producto coherente, sólido y listo para continuar su explotación o adaptarse a distintas estrategias patrimoniales.

Existe otro bajo contiguo, a su derecha, prácticamente idéntico en distribución y concepto, de 112 m² construidos, que se comercializa también de forma individual o conjuntamente. No dispone de licencia turística, estando actualmente destinado a alquiler de corta estancia por periodos superiores a 11 días, no obstante su versátil configuración lo hace ideal tanto como inversión como para vivir. 

La Inmobiliaria Cicerone presenta esta vivienda en exclusiva, una oportunidad singular en uno de los barrios con mayor demanda y proyección de Valencia. Se ruega no contactar directamente con los propietarios ni realizar propuestas comerciales sin autorización.

CICERONE está inscrita en el Registro de Agentes de Intermediación Inmobiliaria de la Comunidad Valenciana (RAICV 2748).