Tipo
Precio
Provincia
Población
Distrito
  • Necesitas seleccionar una población para poder filtrar por distrito

Barrio
  • Necesitas seleccionar un distrito para poder filtrar por barrio

Estado
Extras

Vivienda con reforma a estrenar en Eixample

Eixample, Valencia - Valencia

CG1203

640.000€

Icono de una capa

3

Icono de una ducha

3

Icono que representa los metros
					cuadrados

97

Icono que representa los metros
					cuadrados exteriores

-

Características

  •   Buen estado/Reformado
  •   Ascensor
  •   Aire acondicionado

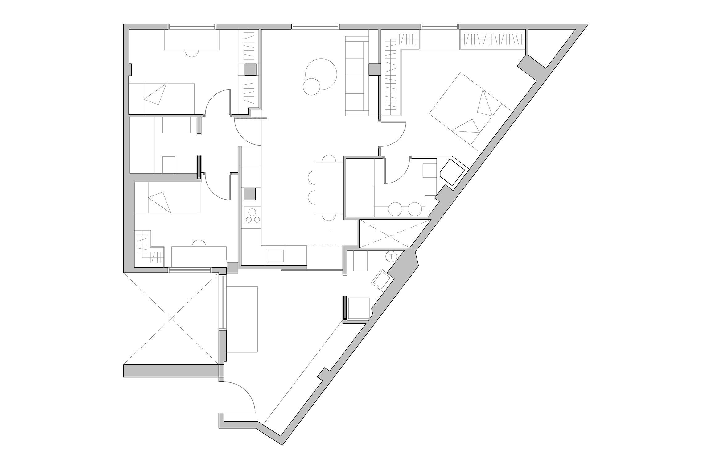
Ubicada en el distrito del Eixample, en el barrio de Gran Vía, se presenta esta vivienda interior de 97 m² construidos según catastro, situada en una segunda planta con ascensor de un edificio clásico del año 1956. Una propiedad que ha sido reformada integralmente a estrenar, combinando funcionalidad, diseño contemporáneo y confort en una de las zonas más deseadas de Valencia.

Al acceder a la vivienda, un recibidor con una zona ideal para despacho o espacio de trabajo que incluye un aseo y da la bienvenida, marcando el carácter práctico del inmueble. La cocina abierta al salón comedor, totalmente equipada, se integra de manera armoniosa en el espacio principal, creando un ambiente moderno y muy luminoso. La habitación principal dispone de una amplia zona de armarios empotrados y un baño en suite con acabados elegantes. En el otro extremo de la vivienda se encuentran dos dormitorios adicionales de buen tamaño y un segundo baño completo, diseñado para dar servicio a toda la casa.

La reforma, reciente a estrenar y cuidadosamente ejecutada, ofrece una distribución práctica y cómoda, pensada para el ritmo de vida actual. La propiedad destaca por su tranquilidad al recaer a un amplio patio de manzana, proporcionando luz natural y un ambiente sereno en pleno centro urbano.

Si está buscando comprar un piso reformado en el barrio de Gran Vía, la inmobiliaria Cicerone pone a su disposición esta vivienda totalmente nueva, perfecta para quienes buscan confort, diseño y una ubicación privilegiada en Valencia.

Cicerone está inscrita en el Registro de Agentes de Intermediación Inmobiliaria de la Comunidad Valenciana: RAICV 2748.