Tipo
Precio
Provincia
Población
Distrito
  • Necesitas seleccionar una población para poder filtrar por distrito

Barrio
  • Necesitas seleccionar un distrito para poder filtrar por barrio

Estado
Extras

Luminoso apartamento en Trinitat

La Saïdia, Valencia - Valencia

CG9121

330.000€

Icono de una capa

1

Icono de una ducha

1

Icono que representa los metros
					cuadrados

68

Icono que representa los metros
					cuadrados exteriores

2

Características

  •   Buen estado/Reformado
  •   Ascensor
  •   Aire acondicionado
  •   Calefacción gas

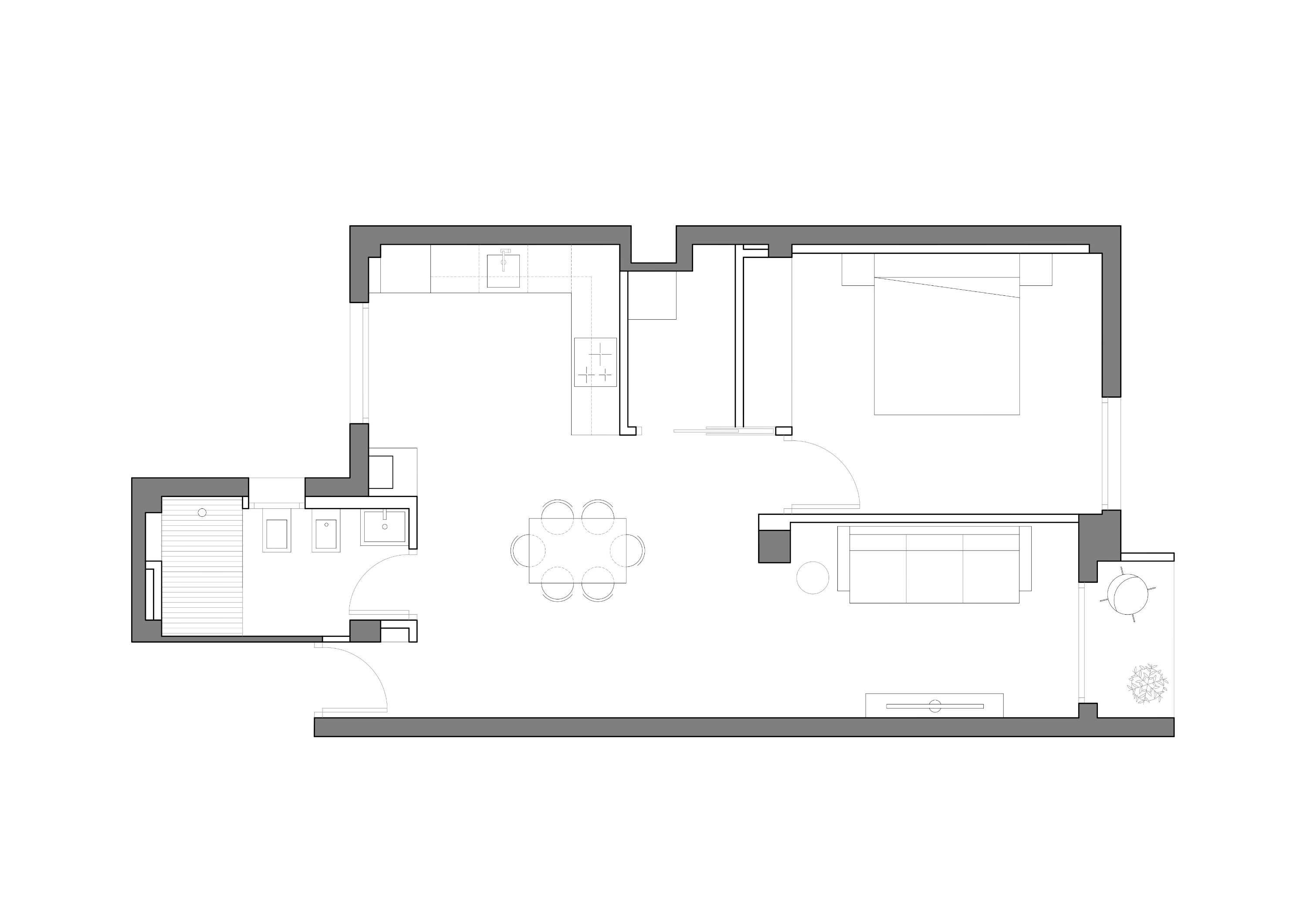
Situado en el barrio de Trinitat, a escasos minutos de los Jardines del Turia y los Jardines de Viveros, se encuentra este apartamento de 60 m² de vivienda, según catastro. La propiedad se ubica en la cuarta planta de un edificio construido en 1967, con ascensor y el zaguán adaptado a personas con movilidad reducida. La vivienda recae al patio de manzanas pero destaca por una luminosidad excelente y por disfrutar de agradables vistas a los jardines de la Parroquia de Nuestra Señora del Carmen. 

La vivienda cuenta con una reforma integral a estrenar, en la que se han empleado materiales de alta calidad. Destaca por la presencia de suelos de madera natural, carpinterías con doble acristalamiento y un exclusivo acabado en color blanco mate, paredes lisas, carpintería de madera fabricada a medida, calefacción mediante caldera de gas y aire acondicionado mediante splits. 

El apartamento cuenta con una distribución muy compacta, sin la presencia de pasillos o zonas de paso, lo que garantiza el máximo aprovechamiento del espacio. La vivienda nos recibe con un amplio espacio diáfano donde conviven la cocina y el salón-comedor, desde el cual se accede a una pequeña terraza con vistas despejadas. La propiedad se completa con un lavadero independiente, un baño completo y un dormitorio de buen tamaño. 

Si está buscando comprar apartamento en La Saïdia, Cicerone le presenta un apartamento completamente reformado y a estrenar, situado en un barrio perfectamente consolidado, a pocos minutos del centro de Valencia.

CICERONE está inscrita en el Registro de Agentes de Intermediación Inmobiliaria de la Comunidad Valenciana (RAICV 2748).